Strona Główna/Mieszkania/Nowy Sącz, Aleje Wolności / Żeromskiego - Budynek wielorodzinny
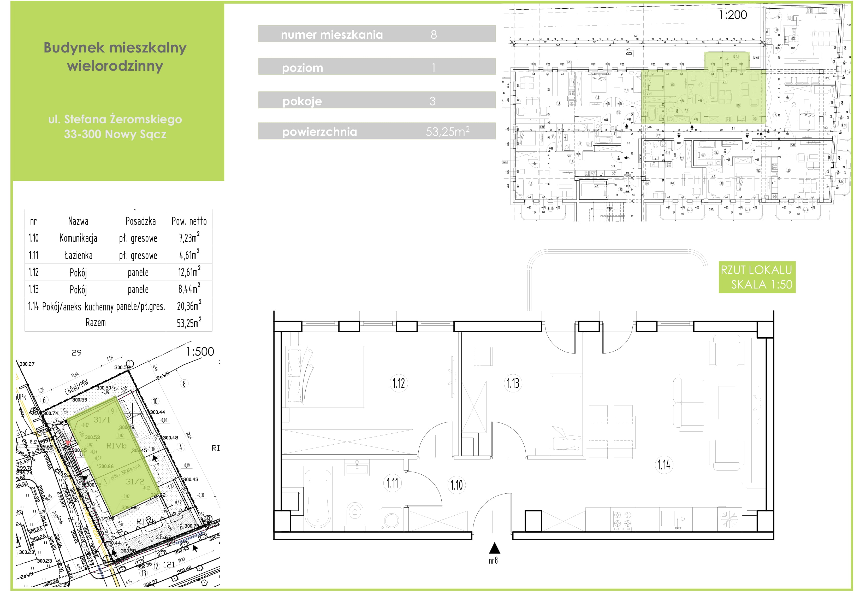
Przestronne mieszkanie znajdujące się w nowoczesnym lokalu. Dobry metraż oraz przemyślane rozmieszczenie pomieszczeń użytkowych, zapewni komfort oraz wygodę w codziennym użytkowaniu.
Świetna lokalizacja inwestycji, nowoczesne i przestronne mieszkanie. Jeśli cenisz sobie łatwy i szybki dostęp do miasta i jego udogodnień, a przede wszystkim czego Twoja rodzina potrzebuje na co dzień, to ta inwestycja jest dla Ciebie.
Zapraszamy do kontaktu oraz zapoznania się z ofertą.
| # | Nazwa | Oferta od | Data | Informacje | Miejsca parkingowe |
|---|---|---|---|---|---|
| 1 | Oferta 1 | Osoba fizyczna | 2022-03-01 |
Logo firmy na banderoli dachu: Nie Projekt aranżacji wnętrz: Nie Kompleksowa aranżacja wnętrza: Nie |
Bez miejsca parkingowego |
















HLS INVEST BIS Sp. z o.o.
ul. Jana Pawła 23/104, 33-300 Nowy Sącz
Tel: +48 888 978 769
Tel: +48 601 166 279
Email: sprzedaz@hls.com.pl
Email: biuro@hls.com.pl
Pn-Pt: 08.00 - 16:00
Sob: 08.00 - 12:00